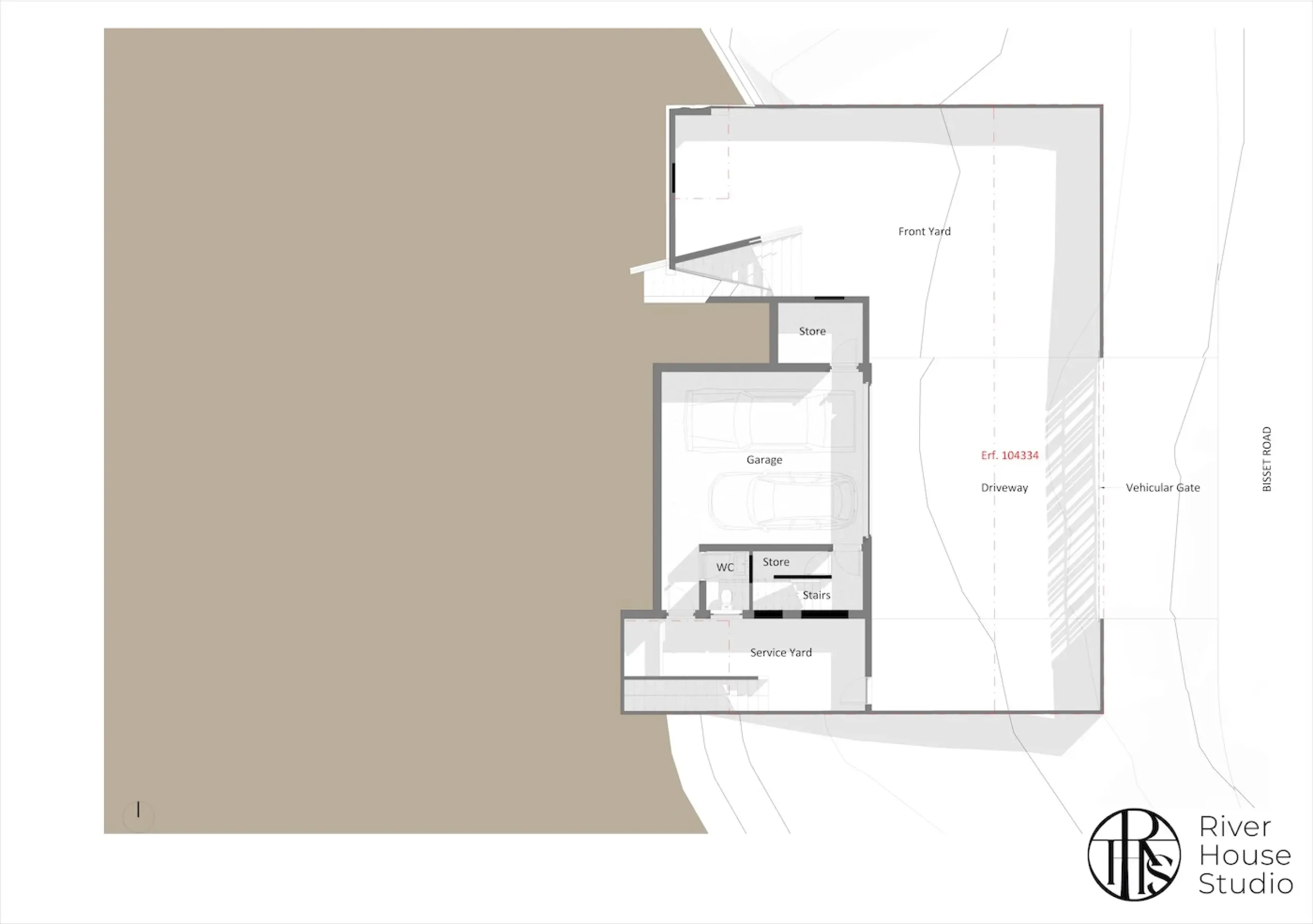
The brief for this project was to transform the existing traditional 60’s cottage into a contemporary home. This was achieved by adding an additional storey to the building and reconfiguring the ground floor plan to create an open-plan design, while retaining as much of the existing structure as possible.
The strategy was to remove key non-load-bearing walls to break free from the constraints of the mid-century planning conventions. This reconfiguration opened the ground floor to the beautiful garden space and maximise natural light from the northern sun.
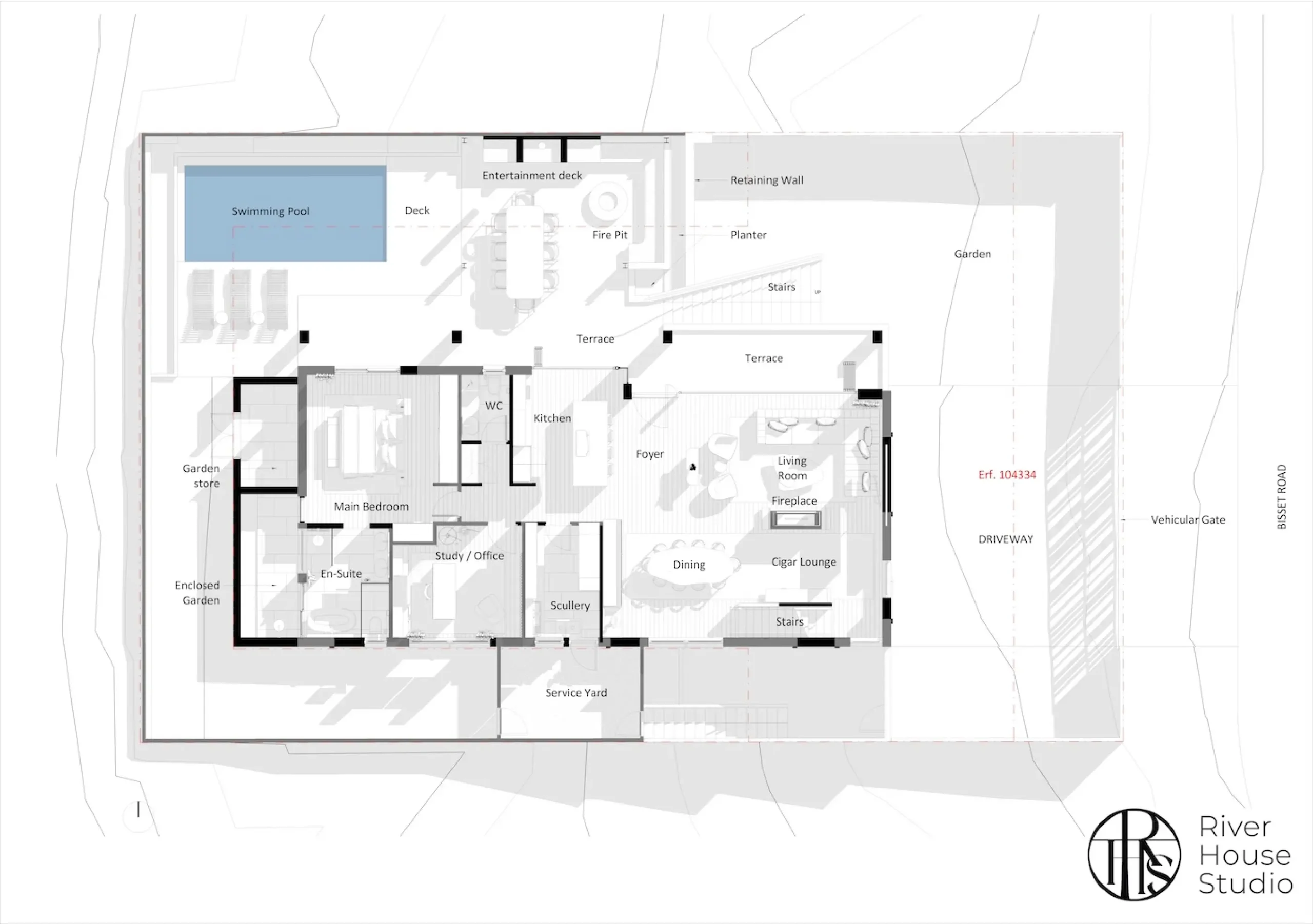
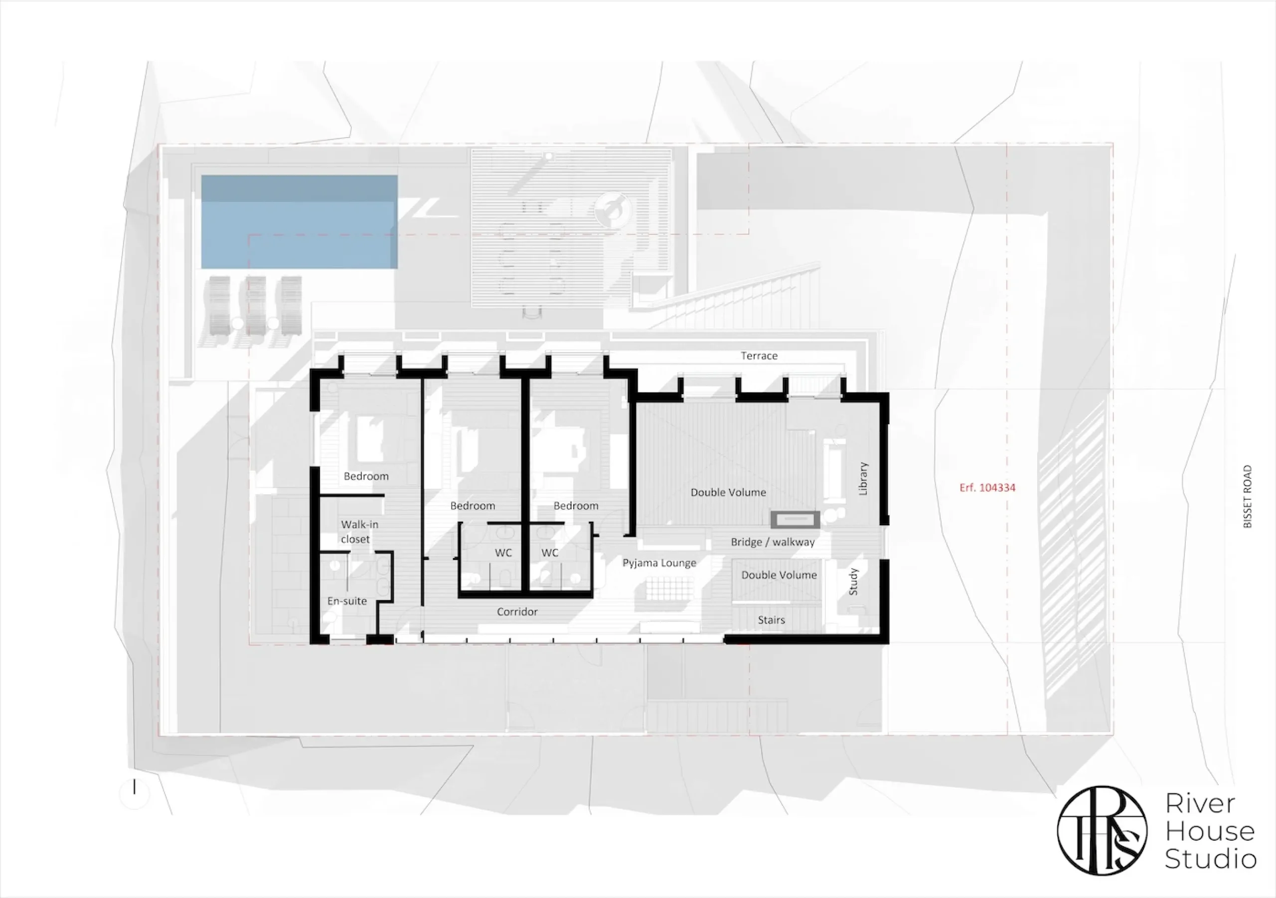
The addition of the new first floor and gabled roof extends the house to better accommodate the client’s family needs. A key design element is the in-situ concrete gable, a modern reinterpretation of the Cape Dutch vernacular, rooted in the architectural heritage of the nearby Winelands. On the northern elevation, steel-framed “boxes” penetrate the façade, creating a seamless connection between interior and exterior spaces. These projections provide shade for the expansive glazing, mitigating glare and enhancing energy efficiency.
A first-floor terrace was introduced to reinforce the inside-outside relationship. This terrace not only offers a sheltered vantage point overlooking the garden but also provides a protective overhang for the ground floor, mitigating heat gain during summer months and creating a welcoming threshold between interior and exterior spaces.
The materiality is curated to allow the building to integrate into its beautiful natural setting while keeping to the contemporary design language. The darker hues of grey and black lend dramatic contrast to the vibrant greens of the surrounding nature, with the site bordering the world-famous Kirstenbosch Botanical Garden. In addition to exposed concrete and steel, the first-floor addition is clad in charred wood or Shou Sugi Ban, a traditional Japanese technique to preserve the wood and brings about a striking aesthetic. The exposed red brick of the existing structure is bagged and painted to suit the updated look and feel.
The landscape design makes the most of South Africa’s climate. A new swimming pool and entertainment deck were added, seamlessly connecting the home to the garden and creating inviting spaces for relaxation and socialising.