House Seyuba is an alteration and addition project, reimagining an outdated suburban house into a modern family home that balances heritage sensitivity with contemporary living.
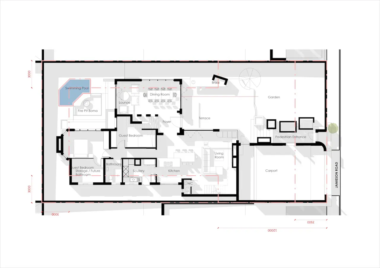
The existing house is heritage-graded and is situated on a tight lot in the suburbs. The existing house is of a traditional typology, and the character of the architecture must be altered to exhibit a contemporary lifestyle. The ground floor sits two meters below street level, posing challenges for natural light and connection to the street. The transformation seeks to reconfigure the planning of the ground floor for open-plan living, integrating the interior with the lush garden while introducing an additional first floor to meet the demands of a growing family.
The ground floor reconfiguration prioritises minimal intervention to maintain cost efficiency and preserve structural integrity while making the necessary adaptations to open the space. The first-floor addition is the focal point, designed to provide ample space for family living while creating opportunities for future adaptability in finishes as the family’s needs evolve.
The architecture is expressed as a composition of white, cubist volumes with timber detailing, softened by curved elements that reference late and high modernism, a hallmark of Cape Town’s Southern Suburbs.
Load-bearing walls are retained, and the new first-floor addition is structurally complementary, respecting the framework of the original building. Simple materials are used in an innovative way to express a unique craftsmanship. Brickwork is celebrated through alternating patterns, including stretcher bond, soldier course, and stagger bond, adding depth and texture to the façade. Waffle (coffered) slabs, typically found in commercial architecture, are introduced to reduce material usage while providing a distinctive aesthetic to the ceiling planes.
Existing window openings are preserved and enlarged selectively to invite natural light deeper into the interior and frame views of the garden. A central cast-in-place concrete staircase, illuminated by an overhead skylight, serves as both a functional and sculptural element, enhancing vertical circulation and light penetration.
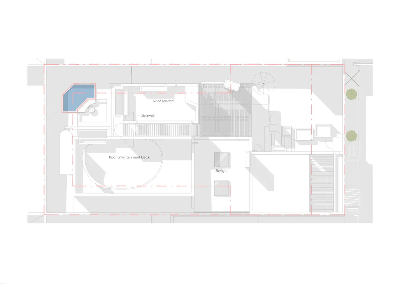
A roof garden is introduced, offering panoramic 360-degree views of the Table Mountain range, Tygerberg Hills, and Stellenbosch Mountains. This space becomes a versatile leisure area for activities such as sunbathing or sundowners. On the ground floor, the connection between the North-facing garden with a pool and the rear garden’s lush greenery is enhanced. Strategic openings create a visual and physical link, reinforcing the relationship between indoor and outdoor spaces.
House Seyuba exemplifies thoughtful architectural intervention, where efficient planning, cost-sensitive techniques, and innovative material use come together to create a modern family home. It reflects the balance between heritage preservation, contemporary design, and seamless integration with its context.