Single Residential
On Hold

Skulpiesbaai House

This ocean-side home is perched on the Northern slopes of a Fynbos-protected greenfield site overlooking the Indian Ocean. The gentle slope to the rocky shoreline offers 180-degree views over the Indian Ocean. A dream site, indeed!
Single Residential
On Hold

Skulpiesbaai House

This ocean-side home is perched on the Northern slopes of a Fynbos-protected greenfield site overlooking the Indian Ocean. The gentle slope to the rocky shoreline offers 180-degree views over the Indian Ocean. A dream site, indeed!

Skulpiesbaai House

Location: Skulpiesbaai, Still Bay, South Africa
Site Area: 824m2
Project Area: 407m2
Project Team: Willem Steytler
Landscape Designer: Fouche Landscaping
Interior Design: River House Studio
Consulting Engineer: Frame, EGC Consulting Engineers
Land Surveyor: T Visagie Landmeter

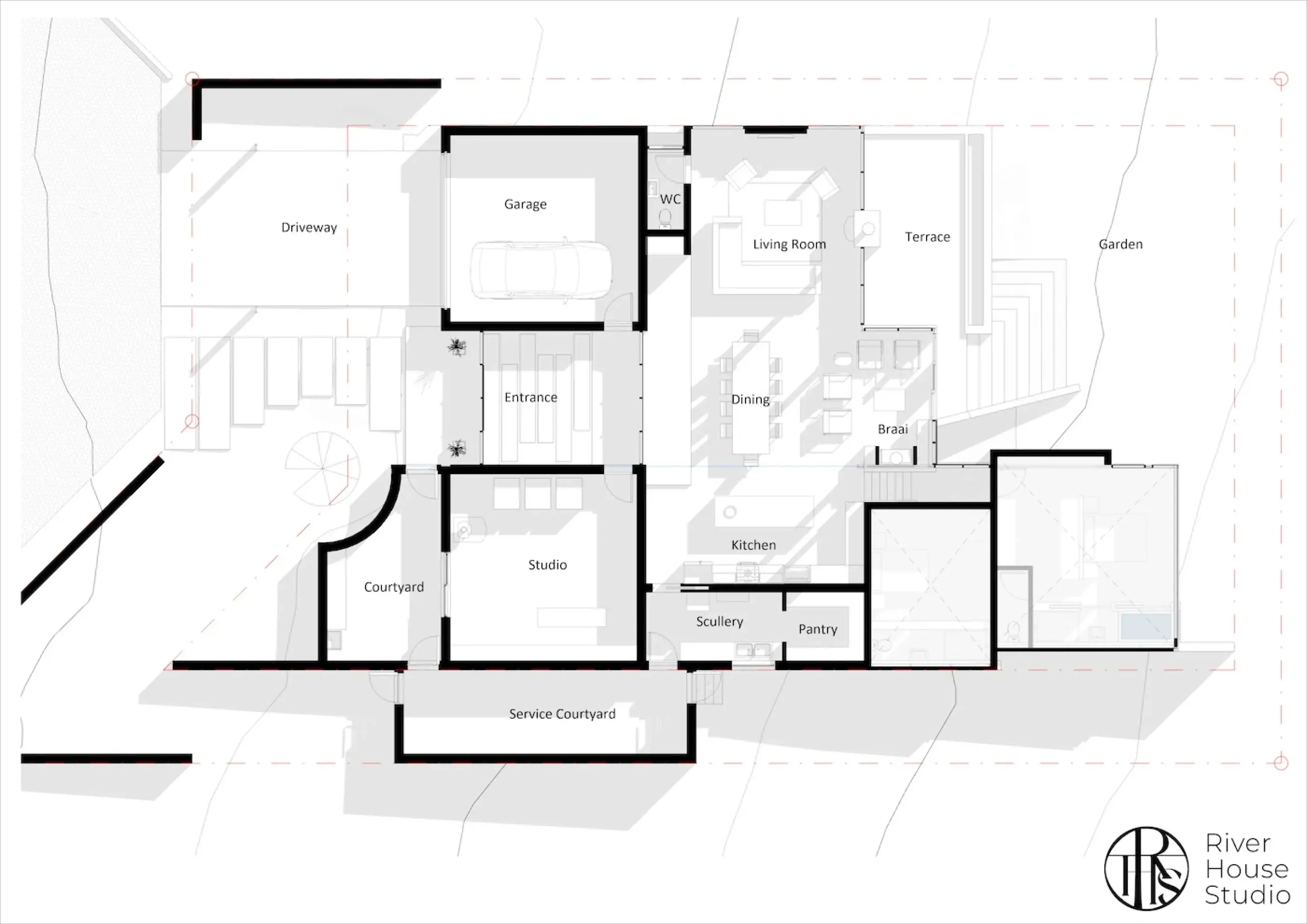
This ocean-side home is perched on the Northern slopes of a Fynbos-protected greenfield site overlooking the Indian Ocean. The gentle slope to the rocky shoreline offers 180-degree views over the Indian Ocean. A dream site, indeed!

The project scope was to design a home that not only complements the topography and the natural heritage of the site but maximises its unique attributes, including views, sunlight, prevailing wind directions and the need for privacy.

The resulting design is a structure that sits lightly on the landscape, cascading gracefully down the natural contours of the land. Orientation was a critical aspect, carefully planned to minimise wind ingress while maximising ocean views. The home is designed to harmonise with the sun’s path, allowing natural light to penetrate deeply into the interior spaces throughout the day while mitigating glare and heat gain in the late afternoon.

The living and public spaces are positioned to prioritise the expansive vistas. The main en-suite bedroom is located closest to the ocean, with a layout that ensures an unobstructed visual connection to the water. The walk-in closet is tucked discreetly behind the bed, while the bathroom and shower are oriented to capture the entire ocean panorama.

Privacy is achieved through careful planning. The interior spaces and front garden are shielded from neighbouring properties, fostering tranquillity and reinforcing the connection to nature.

The structure is a lightweight steel structure comprised of I-beams and -columns with floating timber roofs enhancing the feeling of openness. Smooth and textured white walls provide an understated aesthetic, while natural stone and red brick accents introduce warmth and texture.

The seamless transition between indoor living spaces and outdoor gardens and terraces reflects the essence of oceanfront living and fully uses the Mediterranean climate.

The design also celebrates the site’s protected Melkhout trees, incorporating them into the architectural plan. One tree is left undisturbed, with the building morphing around it, using its foliage to provide both natural shading and enhanced privacy.

This home is a testament to the harmony that can be achieved when architecture responds sensitively to its environment – a design that embraces the local context while enhancing the human experience.

Gallery Images

Project Plans

Multi-Residential
On Hold

Aurora Row

As River House Studio’s inaugural commission, this project holds a special place in our journey and remains a proud milestone.